Земля в Бресте становится «по-настоящему золотой». Итоги аукциона
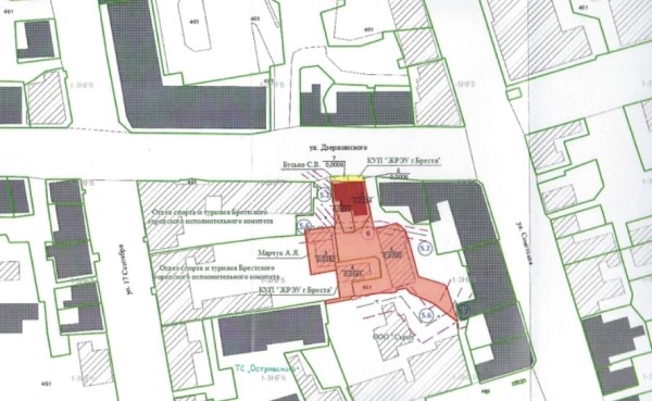
Речь про продажу земельного участка в центральной части города, в районе ул. Дзержинского, 31, это совсем рядом с пешеходной улицей Советской.

Пока на территории участка расположены полу-заброшенные здания и сооружения, подлежащие сносу. Они находятся на балансе ЖРЭУ, сумма компенсаций за них обозначена в 708 077 рублей, т.е. это то, что ляжет в будущем на застройщика.

Ну и конечно же самое интересное – это стоимость торгов, тут были удивлены все, от участников, до организаторов. Со стартовой цены 4 864,03 рублей, стоимость выросла до 3 600 000 рублей. Пропорционально размеру участка это явный лидер по цене для брестского рынка. Победителем торгов стала местная компания, которая пока пожелала остаться неназванной…

Как видим, брестские застройщики все активнее стали приобретать участки именно в центральной части города, т.е. процесс реновации постепенно набирает обороты в городе Бресте, и все чаще на месте старых строений появляются современные жилые комплексы.
Справедливости ради нужно сказать, что покупатели жилья в Бресте также все чаще показывают, что готовы переплачивать за квадратные метры находящиеся именно в центре города, чего только стоят сделки на Гоголя-Папанина или улицах Комсомольской и 17 сентября.
Комментарии закрыты.